Información sobre esta propiedad
Terreno en Venta:
Nuevo León,
Monterrey,
Pedregal de Valle Alto
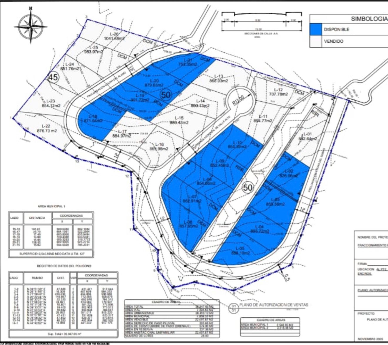
Venta de excelentes 13 terrenos para inversionistas, para constructores y para construir tu residencia, en la colonia Pedregal de Valle Alto.
van desde mas de 750 M2 hasta mas de 800 M2
el precio por metro cuadrado es de $12,500.00 pesos por metro.
Detalles sobre esta propiedad
Propiedad
- Tipo de propiedad: Terreno
- Transacción: Venta
- Estado: Nuevo León
- Municipio: Monterrey
- Zona: Pedregal de Valle Alto
- Uso: Nuevo
- Antiguedad: A estrenar
- Superficie del terreno:800 m2
- Superficie construída: m2

